

White Plains, NY
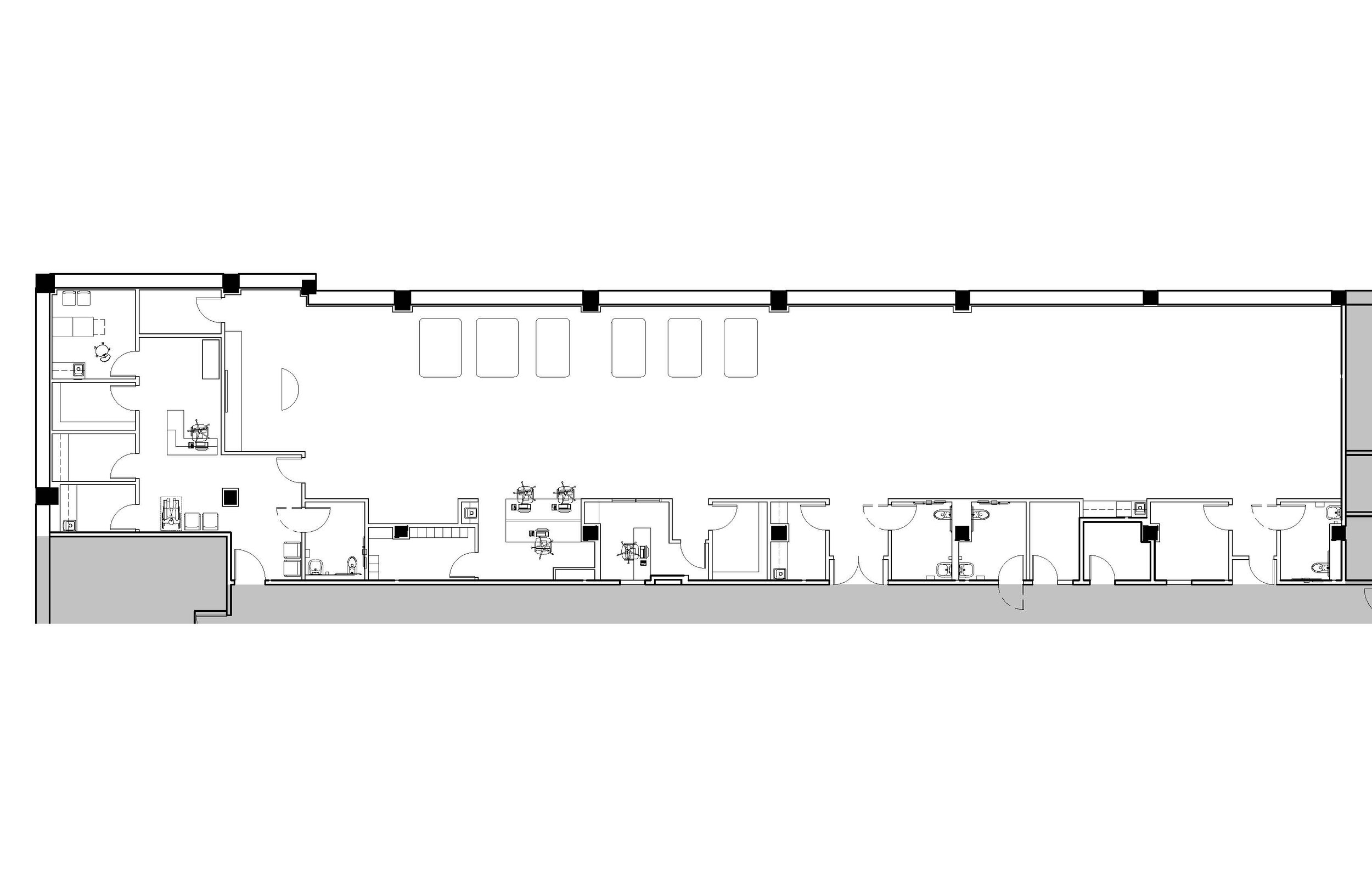
Burke Rehabilitation Hospital, an existing 150-bed acute rehabilitation hospital entirely dedicated to adult rehabilitation medicine, is establishing a new Physical Therapy Gymnasium (“PT”) and an adjacent Electromyography Suite (“EMG”) within the existing main hospital facility, located at 785 Mamaroneck Avenue, White Plains, New York on the Ground Floor. Burke is preparing to construct and operate this PT Gym and EMG Suite to support their ongoing mission as a provider of state-of-the-art treatment and personalized care as a result of expert, interdisciplinary teams that are led by highly respected medical specialists in the field of rehabilitation and physical therapy services.
The proposed new gymnasium construction will include 6 open therapy cubicles, 1 main exercise area and 1 occupational therapy area. Support spaces include waiting/reception area, therapist documentation and work area, an office as well as soiled utility, clean supply, storage, equipment alcoves, patient toilets, staff toilets and staff lounge/lockers. The proposed EMG suite construction will include 1 EMG exam room. Support spaces include waiting/reception area, storage, soil hold, clean supply, and a patient toilet.